Trong bối cảnh đô thị TP. HCM ngày càng phát triển, những ngôi nhà phố không chỉ cần đáp ứng nhu cầu sinh hoạt của gia đình mà còn phải phản ánh được gu thẩm mỹ, lối sống và tầm nhìn lâu dài của gia chủ. Công trình nhà phố 3 tầng + tum sân thượng diện tích 5x19m của anh Toản tại Quận 9, do Việt Quang Group trực tiếp thiết kế và thi công xây dựng nhà trọn gói, là minh chứng rõ nét cho sự kết hợp giữa tư duy kiến trúc hiện đại – công năng chuẩn mực – phong thủy hài hòa.
Ngay từ những buổi đầu trao đổi, anh Toản đã chia sẻ mong muốn về một ngôi nhà:
Đẹp hiện đại nhưng không quá cầu kỳ
- Nhiều ánh sáng tự nhiên
- Đề cao không gian xanh
- Bố trí phòng ốc hợp lý cho gia đình trẻ
- Có sân thượng rộng làm nơi thư giãn, trồng cây và tổ chức các bữa tiệc nhỏ
Và chính từ những mong muốn đó, đội ngũ kiến trúc sư Việt Quang Group đã bắt tay xây dựng một bản thiết kế vừa thẩm mỹ, vừa “đo ni đóng giày” cho gia chủ.
1. Ngôn ngữ kiến trúc hiện đại – sang trọng nhưng tinh gọn
Phối cảnh mặt tiền 5m được xử lý bằng tỷ lệ mảng khối rõ ràng:
- Các đường nét vuông vức, mạnh mẽ
- Hệ cửa kính lớn giúp khai thác ánh sáng
- Màu trắng – nâu gỗ – đen được phối hợp hài hòa
- Ban công vươn nhẹ tạo cảm giác công trình cao hơn, thoáng hơn
Những mảng ốp gỗ trang trí xen kẽ với lam thép và kính cường lực tạo sự tương phản về vật liệu, giúp mặt tiền trở nên nổi bật giữa dãy phố.
Đây là phong cách kiến trúc rất được ưa chuộng hiện nay trong các công trình xây nhà trọn gói, đặc biệt ở TP. Thủ Đức và Quận 9, khi gia chủ muốn một ngôi nhà đẹp – sang – nhưng dễ bảo trì.
2. Công năng khoa học – chuẩn tối ưu cho nhà phố 5x19m
Dựa trên hồ sơ mặt bằng bạn gửi, có thể thấy phương án bố trí được Việt Quang Group xử lý rất mạch lạc, thể hiện khả năng triển khai xây nhà phần thô và hoàn thiện cực kỳ bài bản.
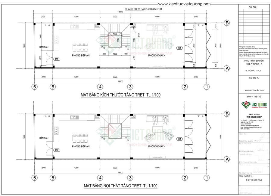
Tầng trệt – mở ra nhịp sống của cả gia đình
Tầng trệt gồm:
- Phòng khách rộng liên thông bếp
- Khoảng sân sau thoáng khí
- Cầu thang đặt ở trung tâm giúp giao thông thuận tiện
Điểm cộng lớn nhất là trục giao thông đứng (cầu thang + giếng trời) được bố trí giữa nhà, giúp toàn bộ tầng trệt luôn tràn ngập ánh sáng.
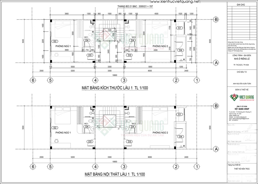
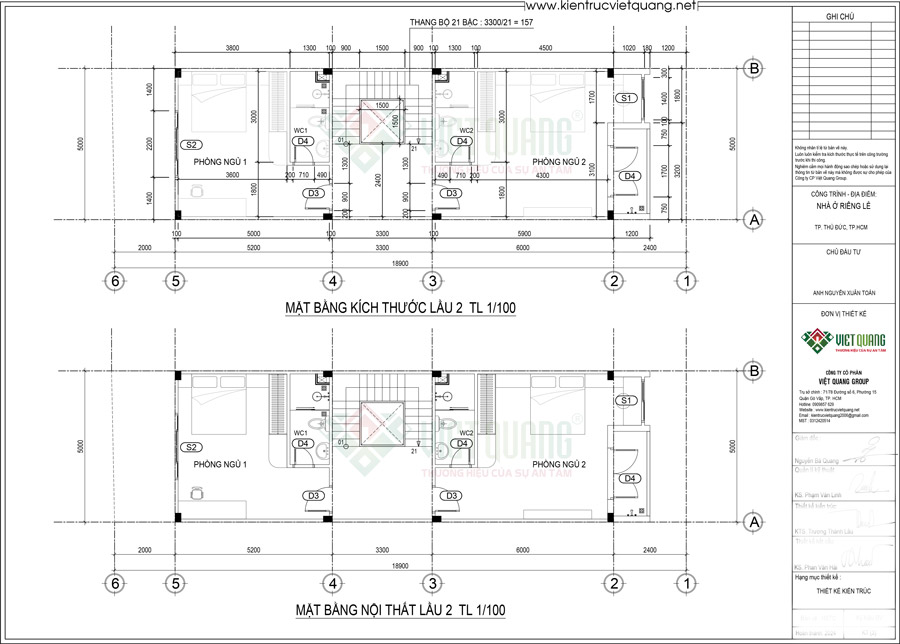
Lầu 1 & lầu 2 – không gian nghỉ ngơi yên tĩnh
Mỗi tầng bao gồm 2 phòng ngủ rộng rãi, WC khép kín, cửa sổ mở lớn.
Nhờ mặt bằng rộng 5m, các phòng ngủ tránh được nhược điểm “dài và hẹp”, từ đó:
- Dễ bố trí nội thất
- Lấy sáng – gió tốt
- Mang lại cảm giác thoải mái khi sử dụng
Đây cũng là lợi thế giúp ngôi nhà đạt chuẩn phong thủy tốt: phòng ngủ thoáng – ánh sáng vừa phải – lưu thông khí tốt.
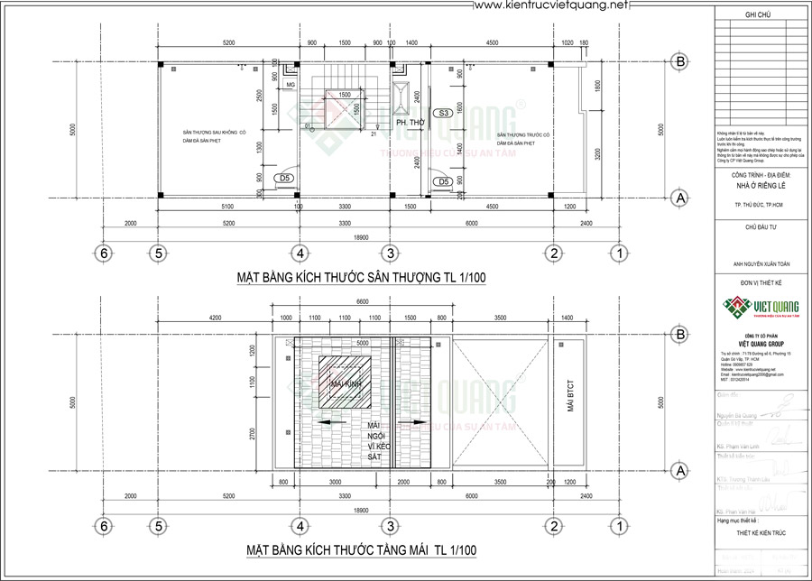
Tầng tum & sân thượng – linh hồn của ngôi nhà
Sân thượng trước được thiết kế theo phong cách “vườn phố”:
- Bồn cây dài
- Lam che nắng
- Khu chill uống trà – đọc sách
- Khoảng trống làm BBQ nhỏ cho gia đình
Phòng thờ đặt tách biệt, trang trọng và yên tĩnh, đúng tinh thần của một ngôi nhà Việt truyền thống.
Việt Quang Group luôn chú trọng bố trí sân thượng rộng trong các dự án xây nhà trọn gói, bởi đây là không gian quý giá để gia chủ thư giãn sau ngày dài làm việc.
3. Vật liệu & giải pháp thi công – yếu tố làm nên chất lượng công trình
Là công ty xây nhà uy tín tại TP. HCM, Việt Quang Group luôn sử dụng vật liệu đạt chuẩn trong thi công:
- Thép Việt Nhật / Hòa Phát
- Xi măng Hà Tiên – Insee
- Cửa nhôm Xingfa hệ cao cấp
- Đá ốp Granite chống trầy
- Kính cường lực 10–12mm
- Sơn nước Jotun chống bám bụi
Sự đầu tư vật liệu đúng chuẩn giúp công trình có tuổi thọ cao, chống thấm – chống nóng hiệu quả, giảm chi phí sửa chữa nhà sau nhiều năm sử dụng.
Hotline hỗ trợ tư vấn vật liệu & thi công: 096 1993 915
4. Giải pháp phong thủy – tăng tài lộc và năng lượng cho gia đình
Ngôi nhà 5x19m được áp dụng các nguyên tắc phong thủy cơ bản:
- Hướng cửa chính hợp mệnh gia chủ
- Bếp quay đúng hướng tốt
- Phòng thờ đặt trên cao – thoáng – nhiều ánh sáng
- Cầu thang bố trí giữa nhà, không phạm đại kỵ
KTS Việt Quang Group luôn xem phong thủy là một phần bắt buộc khi xây nhà trọn gói, giúp gia chủ có cuộc sống bình an – hạnh phúc – thuận lợi trong công việc.
5. Vì sao anh Toản chọn Việt Quang Group?
Trong quá trình trao đổi, anh Toản chia sẻ 3 lý do chính:
a. Tư vấn rõ ràng – thiết kế đúng nhu cầu
Các phương án được điều chỉnh nhiều lần đến khi gia chủ hài lòng 100%.
b. Báo giá minh bạch – thi công đúng cam kết
Không phát sinh chi phí bất hợp lý, tiến độ đúng hợp đồng.
c. Bảo hành rõ ràng – chăm sóc tận tâm
Hệ thống bảo hành – bảo trì 5 năm, luôn có kỹ sư hỗ trợ khi cần.
Hotline hỗ trợ kỹ thuật: 096 1993 915
6. Mẫu nhà 3 tầng tum sân thượng 5x19m là lựa chọn lý tưởng cho gia đình trẻ
Nếu bạn đang tìm một mẫu nhà:
- Thiết kế hiện đại
- Công năng khoa học
- Phong thủy chuẩn
- Thi công chất lượng cao
- Chi phí hợp lý
Thì đây chính là một trong những mẫu đáng tham khảo nhất.
Việt Quang Group – đơn vị xây nhà trọn gói, xây nhà phần thô, sửa chữa nhà, luôn sẵn sàng đồng hành cùng bạn trong hành trình kiến tạo tổ ấm mơ ước. Hotline tư vấn miễn phí: 096 1993 915

























































































































































































